Documentos
Proporção de 1/2 de Moradia V6 com 3 pisos, lado esquerdo, com Área Total de 135,65 m² e Área Bruta de Construção de 282,47 m².
PROPORÇÃO
O bem em venda não constitui uma propriedade plena, apenas uma parte do mesmo.
Esclareça todas as suas dúvidas sobre este direito aqui - LINK
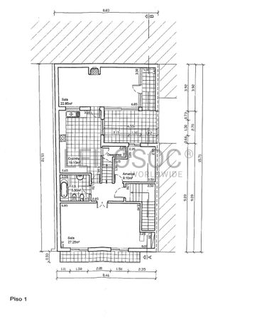
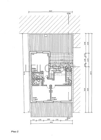
Características do Imóvel
- Rés-do-chão: cozinha, WC, garagem e arrumos.
- 1.º Piso: cozinha, despensa, salas, WC e varanda.
- 2.º Piso: quartos, hall, 3 WCs, terraço e logradouro.
- Autorização de Utilização n.º 95/04, emitida em 01/10/2004.
- Certificado Energético: SCE234839433, válido até 30/09/2030.
Envolvente
- Próxima à zona de comércio, serviços e escolas.
- A 2 minutos do centro do Bombarral e da Câmara Municipal do Bombarral.
- A 5 minutos do Centro Escolar do Bombarral.
- A 22 minutos das praias de Peniche.
Acessos
- A 1 minuto da N8 e da N361.
- A 3 minutos da A8.
- A 5 minutos da Estação de Comboios do Bombarral.
NOTAS
- Este imóvel encontra-se ocupado/habitado por terceiros, e será transmitido nestes exatos termos.
- Na escritura de compra e venda não será feita entrega de chaves nem tomada de posse do imóvel.
- A desocupação constituirá um ónus do adquirente, podendo ser concretizada através de processo de despejo já em curso
Perto de Serviços
Sim
Área Total
135.65
Quantidade de WC
5
Tipologia
T6
Garagem
Sim
Ano de Construção
2005
Lote Número
2
Referência
143073
Processo
DMI-1024/2024
Id do leilão
25004
Id do lote
143073
Proporção de 1/2 de Moradia V6 · Bombarral
65.000,00 €
81.075,00 €
Localização
Bombarral
Rua Mártires da Pátria, Bombarral, 2540-172, Portugal
Datas para visita
Por Marcação
Métodos de pagamento
Informação do vendedor
93
1
18










